Демонтажная вставка Hawle 9810 ДУ80-2500, РУ25 (DN80 - DN2500, PN25) чугунная
Цена по запросу
Арт. 9810
Характеристики
Вид
—
Демонтажная вставка
Тип
—
Чугунная
DN
—
80-2500
Давление, PN
—
PN25
Материал
—
Высокопрочный чугун
Присоединение
—
Фланцевое
Цена действительна только для сайта и может отличаться от указанной в прайс-листе
Демонтажная вставка Hawle 9810 ДУ80-2500, РУ25 (DN80 - DN2500, PN25) чугунная
Цена по запросу
Арт. 9810
Характеристики
|
Вид
|
Демонтажная вставка |
|
Тип
|
Чугунная |
|
DN
|
80-2500 |
|
Давление, PN
|
PN25 |
|
Материал
|
Высокопрочный чугун |
|
Присоединение
|
Фланцевое |
|
Среда
|
Вода |
|
Материал запирающего элемента
|
Чугун |
|
Уплотнение
|
Эластомер |
|
Направление
|
Двустороннее |
Фланцевая фасонная часть, позволяющая выполнять компенсирование в системе трубопроводов с фланцами в продольном направлении.
может оказаться невозможным. Для присоединения демонтажной вставки к данным типам фланцев рекомендуется заменить шпильки на более длинные.
| Вариант 9810 PN 25 | |
|---|---|
| Соединение | Фланцевое |
| Материал | Высокопрочный чугун |
| Диапазон диаметров | DN50 - DN2500 |
| Классификация давления | PN 25 |
Особенности модели
- Простой монтаж и демонтаж фланцевой арматуры.
- Цельные резьбовые шпильки, дополнительные фиксирующие болты не требуются
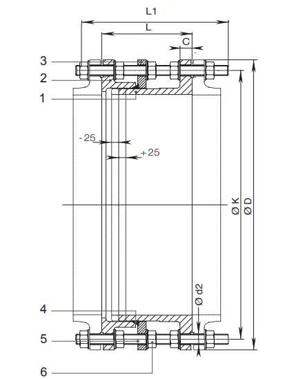
- Диапазон регулировки длины: строительная длина (см. таблицу) +/- 25 мм
- Размеры и отверстия фланца согласно EN 1092-2 | PN 25
- Тип 02 – Фланец стальной плоский на приварном кольце,
- Тип 03 – Фланец стальной плоский на отбортовке,
- Тип 04 – Фланец стальной плоский на хомуте под приварку по ГОСТ 33259-2015
может оказаться невозможным. Для присоединения демонтажной вставки к данным типам фланцев рекомендуется заменить шпильки на более длинные.
Размеры
|
DN мм |
D мм |
К мм |
L мм |
L1 мм |
С мм |
Расчетная масса кг |
|---|---|---|---|---|---|---|
| 80 | 200 | 160 | 200 | 330 | 19 | - |
| 100 | 235 | 190 | 220 | 340 | 19 | 32 |
| 125 | 270 | 220 | 220 | 370 | 19 | 43 |
| 150 | 300 | 250 | 230 | 370 | 20 | 52 |
| 200 | 360 | 310 | 230 | 370 | 22 | 76 |
| 250 | 425 | 370 | 250 | 410 | 24,5 | 108 |
| 300 | 485 | 430 | 270 | 480 | 27,5 | 129 |
| 350 | 555 | 490 | 280 | 500 | 30 | 196 |
| 400 | 620 | 550 | 280 | 480 | 32 | 212 |
| 450 | 670 | 600 | 280 | 480 | 34,5 | 281 |
| 500 | 730 | 660 | 300 | 500 | 36,5 | 290 |
| 600 | 845 | 770 | 320 | 520 | 42 | 389 |
| 700 | 960 | 875 | 340 | 530 | 46,5 | 505 |
| 800 | 1085 | 990 | 360 | 600 | 51 | 690 |
| 900 | 1185 | 1090 | 380 | 600 | 55,5 | 920 |
| 1000 | 1320 | 1210 | 400 | 650 | 60 | 1257 |
| 1200 | 1530 | 1420 | 450 | 750 | 69 | 1870 |
| 1400 | 1755 | 1540 | 490 | 830 | 74 | - |
| 1600 | 1975 | 1860 | 470 | 800 | 81 | - |
| 2000 | 2425 | 2300 | 540 | 950 | 95 | - |
| 2500 | 3015 | 3840 | 540 | 920 | 92 | - |
Комплектующие
| 1,2. | Наружные фланцы | высокопрочный чугун с эпоксидным покрытием |
| 3. | Внутренний фланец | сталь |
| 4. | Уплотнение | эластомер |
| 5. | Резьбовые шпильки | cталь оцинкованная |
| 6. | Гайки | cталь оцинкованная |

Преимущества:
- Надежность и долговечность (чугунная конструкция).
- Удобство при ремонтных работах.
- Компенсация продольных смещений.
Применение:
- Водоснабжение, канализация, промышленные трубопроводы.
- Системы, где требуется компенсация температурных расширений или вибраций.
- Упрощение обслуживания и замены арматуры.
Документы

